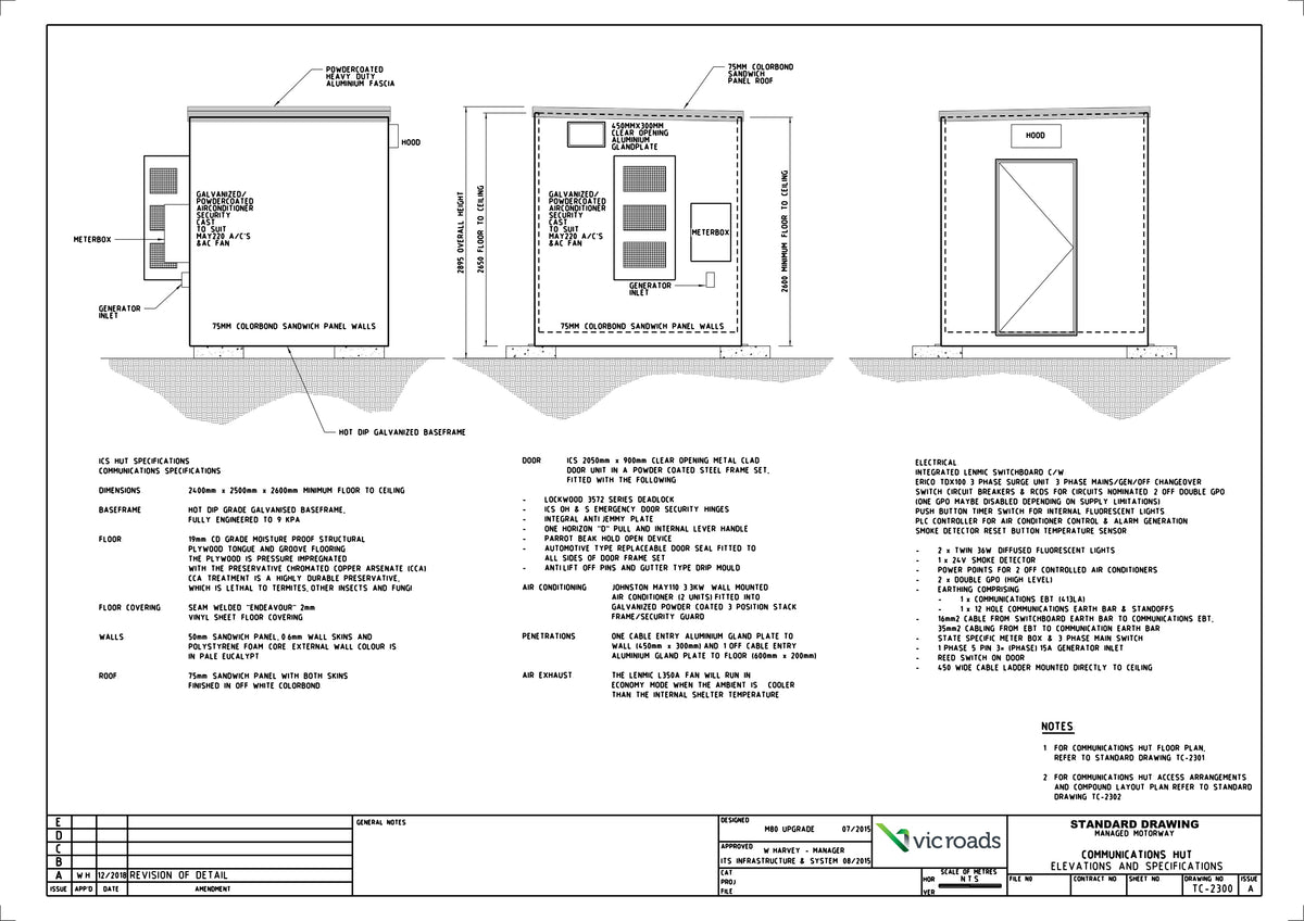
TC-2300 Elevations & Specifications
Looking for product advice?
We work closely with all authorities to ensure that our products meet strict specifications. Our extensive range of products caters to various sectors such as rail, VicRoads ITS, VicRoads Drainage, Sewer, Stormwater, Subdivisions, Council, Commercial, and custom steel fabrication.
By using or downloading any document from this site, you acknowledge and agree to the terms of Access Covers Australia. Read More.
